SARRAZINE
ACCUEIL
STUDIO
SERVICES
PROJETS
MOBILIER
CONTACT
Votre navigateur ne supporte pas la vidéo HTML5.
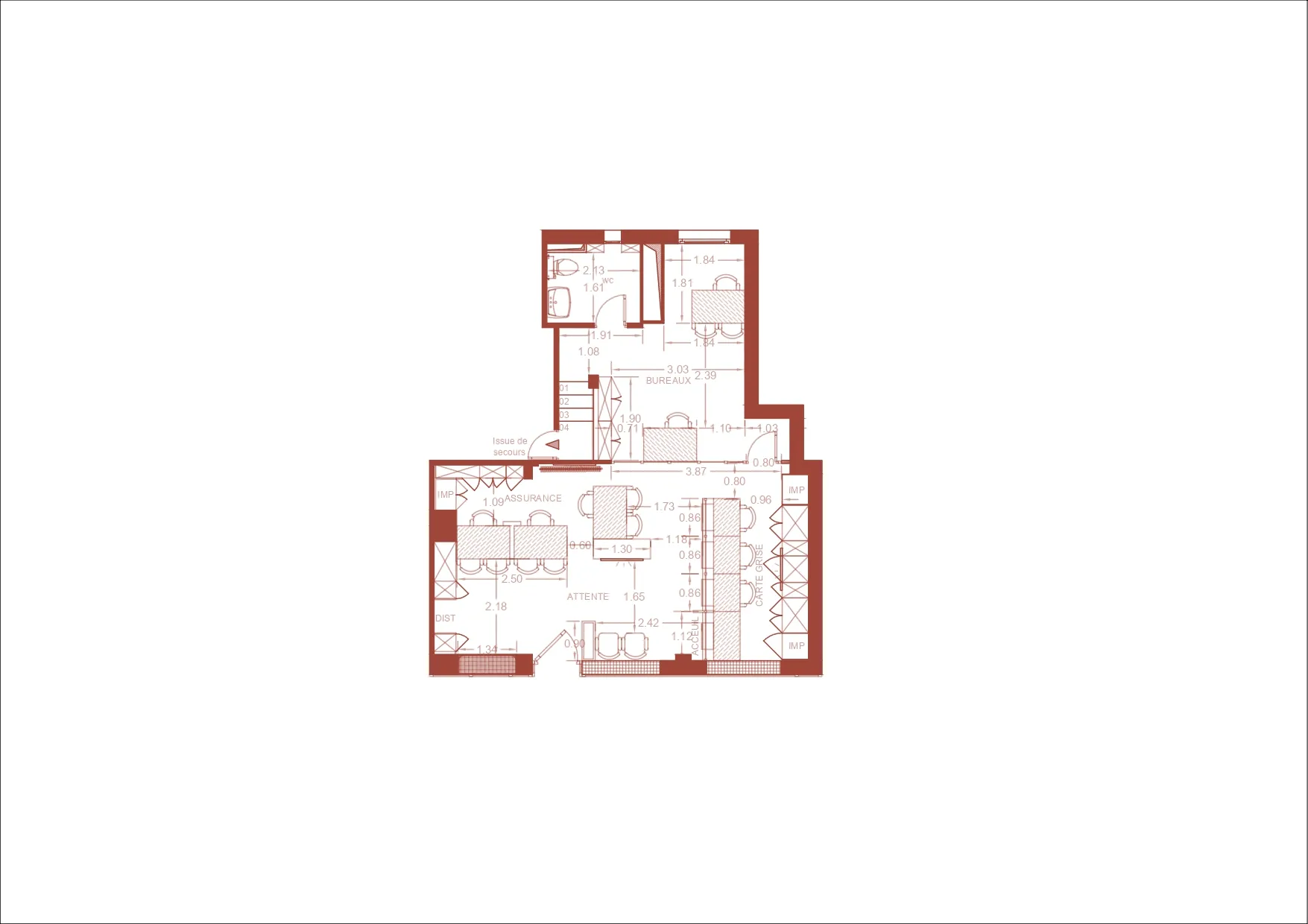
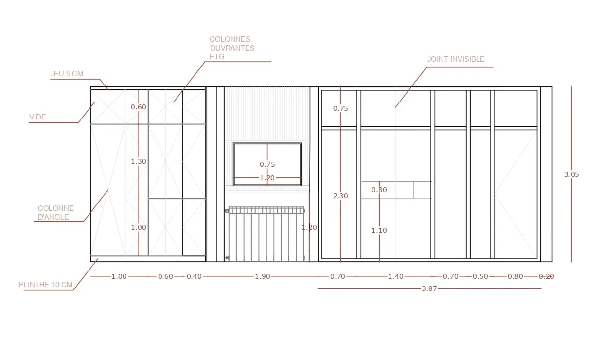
BUREAU D’ASSURANCE REFLEXE
Services
Paris, France
Projet précédent
Projet suivant