SARRAZINE
ACCUEIL
STUDIO
SERVICES
PROJETS
MOBILIER
CONTACT
Votre navigateur ne supporte pas la vidéo HTML5.
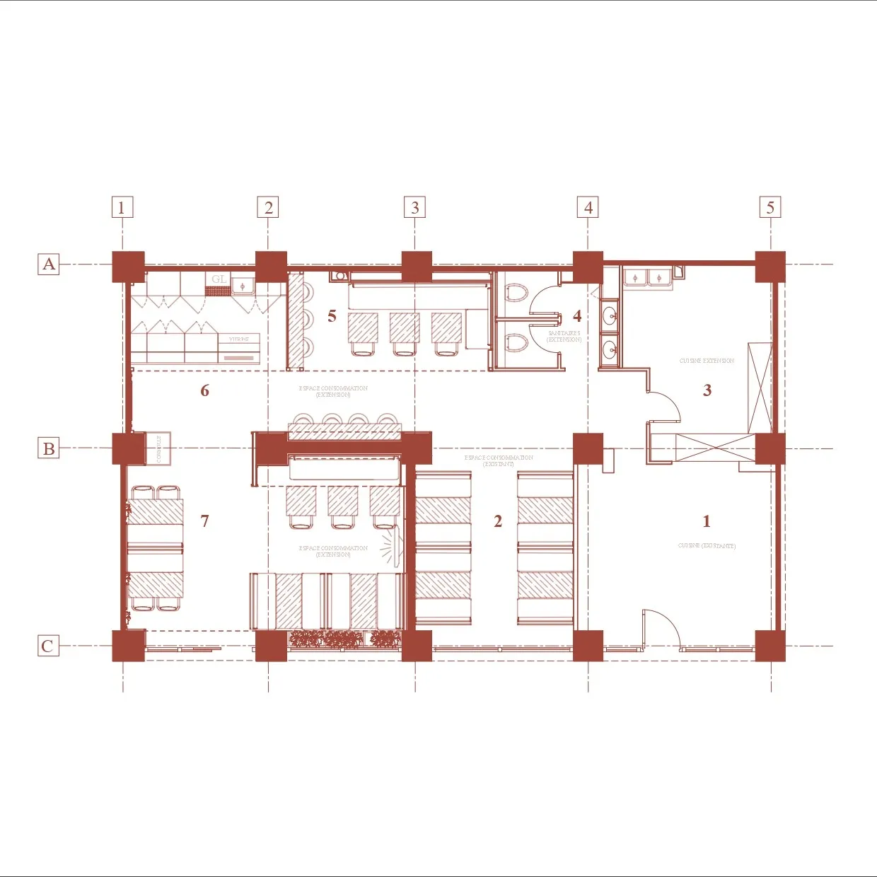
MCCOOL
Restauration
Blida, Algérie
Projet précédent
Projet suivant